L’intuizione di Humpel: Ronchi entra nel progetto già nel 1846
Nel 1846 l’ing. Giovanni Humpel, attivo e residente a Ronchi, auspicò la derivazione delle acque dell’Isonzo per l’irrigazione dei terreni. La sua proposta non si limitava all’idea generale di portare acqua, ma tentava di misurarsi con un problema tipico della piana isontina, riferibile all’irregolarità delle quote e alla difficoltà di distribuire l’acqua in modo uniforme e controllabile. In una prima fase egli valutò l’impiego di mezzi meccanici e soluzioni di sollevamento, arrivando a ipotizzare dispositivi capaci di proiettare l’acqua a distanze considerevoli; successivamente giudicò questi assetti troppo complessi e onerosi e orientò la riflessione verso una soluzione più razionale, basata su una rete di tubazioni ramificate, interrate e distribuite fino alle singole particelle. Ipotizzò cioè un’idea di irrigazione in pressione che, per l’epoca, appare sorprendentemente moderna.
Egli non fu l’autore dell’opera definitiva, ma ipotizzò e propose una delle prime tracce di quel pensiero tecnico che, nel giro di decenni, fu ripreso, affinato e trasformato in progetti più strutturati fino alla realizzazione del canale Dottori. Il suo orizzonte, inoltre, non restò confinato alla sola scala agricola. Negli anni successivi compare anche un suo progetto per convogliare acqua dall’Isonzo verso Trieste, segno di una visione ampia della risorsa idrica come infrastruttura strategica. È proprio questo passaggio lungo, dall’idea alla cantierabilità, che spiega perché Ronchi entrò nel sistema come sede di una centralina e, soprattutto, come nodo di diramazione verso attività e servizi locali.
Officine Elettriche dell’Isonzo e reti: Ronchi come nodo di diramazione
Durante la genesi del sistema elettrico, la configurazione delle direttrici ad alta tensione – con l’asse Redipuglia-Ronchi-Monfalcone in primo piano – sancì definitivamente il ruolo di Ronchi come nodo di transito e smistamento imprescindibile. La capillarità di questa rete emerge con chiarezza analizzando le derivazioni sorte lungo il Canale Dottori, concepite per superare le barriere fisiche del territorio e servire i poli produttivi locali. Dalla centrale di Ronchi si diramavano infatti collegamenti strategici che, scavalcando i binari della Ferrovia Meridionale, alimentavano il Cotonificio di Vermegliano o, attraversando l’arteria stradale per Redipuglia, raggiungevano la falegnameria Tambarin & Co. Questi attraversamenti mirati non erano semplici soluzioni tecniche, ma il simbolo di un’integrazione profonda tra l’energia del canale e il tessuto industriale dell’epoca.
Oltre ai dati puramente ingegneristici, la storia della rete elettrica restituisce una trama di piccoli ma significativi conflitti territoriali, specchio delle resistenze e delle tutele locali dinanzi all’avanzata della modernità. Emblematico è il caso del Consorzio Redipuglia-Ronchi, che si oppose ai possibili disturbi elettromagnetici causati dall’intersecazione tra i nuovi cavi e la preesistente linea telefonica, rivendicando l’integrità delle comunicazioni. Parallelamente, il tracciato urbano a Ronchi divenne terreno di serrate discussioni, dove le esigenze della distribuzione dovettero misurarsi con la tutela delle proprietà private e il rispetto delle alberature storiche che ornavano la strada comunale verso la chiesa, in un delicato equilibrio tra lo sviluppo industriale e il paesaggio consolidato.
Vicende belliche e ripresa del servizio
Siccome il sistema delle Officine Elettriche dell’Isonzo era operativo in un’area che, nel 1915-1917, divenne fronte e retrofronte, è verosimile -sebbene scarsamente documentato- che la continuità di esercizio di produzione e trasporto fu stravolta dal contesto di guerra, con conseguenze sulla rete e sui servizi che da Ronchi si diramavano verso le citate utenze.
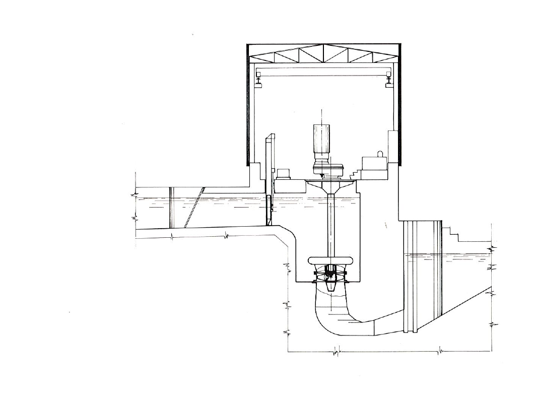
Sotto il profilo architettonico e funzionale, la centrale di Ronchi si definisce come un impianto disposto ‘in fregio’, una configurazione laterale rispetto al corso principale del canale che ne caratterizza l’inserimento idraulico. L’assetto originario del salto, attestato su un dislivello di 2,80 metri con una portata di 12 m³/s, esprimeva una potenza di 260 kW misurata ai morsetti del generatore. La dotazione elettromeccanica seguiva la medesima impostazione tecnica del sito di Fogliano, adottandone la tipologia gemella: il cuore tecnologico era costituito da turbine nell’ordine dei 200 HP, accoppiate a un generatore da 370 kVA tarato a 180 giri al minuto, garantendo così una risposta energetica costante e armonizzata al resto dell’asta.
Riattivazione ENEL e il contemporaneo
La cifra specifica di Ronchi in seno alla riattivazione rispetto agli altri impianti si legge non solo nella sostituzione delle macchine, ma soprattutto nella ricostruzione di condizioni di stabilità e di scarico, cioè del comportamento strutturale e idraulico nel punto più delicato dell’impianto. Difatti furono messe al centro principalmente le opere civili, previa demolizione de pregresso fabbricato e consolidamento del terreno con micropali.
A livello di esercizio, il quadro generale delle prime esperienze sottolinea la necessità di sgrigliatori automatici per gestire il materiale flottante, pena l’onere di servizi esterni di sgrigliatura e conferimento.
Oggi la centralina, gestita da Edison, dispone di gruppi turbina-generatore ad asse verticale producono a 0,4 kV con trasporto in rete MT a 20 kV.
foto: Opera di salto con paratoie e sfioro a cascata, con canale di derivazione e manufatti di regolazione delle portate_Credit: Consorzio di Bonifica della Venezia Giulia
Bibliografia Essenziale
Facile, Elio; Mancini, Giuliano; Sussi, Furio, La riattivazione delle centrali sul Canale Dottori, ENEL, Settore Produzione e Trasmissione di Venezia, 1988
Dorsi, Marina, Le Officine Elettriche dell’Isonzo. Distribuzione dell’elettricità e sviluppo industriale nel Monfalconese, in Bisiacaria, 1992
Felcher, Stefano, Alla ricerca del “carbone bianco”: dalla realizzazione dei primi impianti idroelettrici al monopolio nell’elettrificazione della regione Nord Adriatica, in Quaderni, XXXIV(1), 2023
Consorzio Culturale del Monfalconese, Il canale irriguo industriale da Sagrado a Porto Rosega, scheda web, s.d., consultata il 28 febbraio 2026
Consorzio Culturale del Monfalconese, Cinque centraline idroelettriche, scheda web, s.d., consultata il 28 febbraio 2026
Edison S.p.A., Dichiarazione ambientale 2024-2026. Polo 3, 2024




